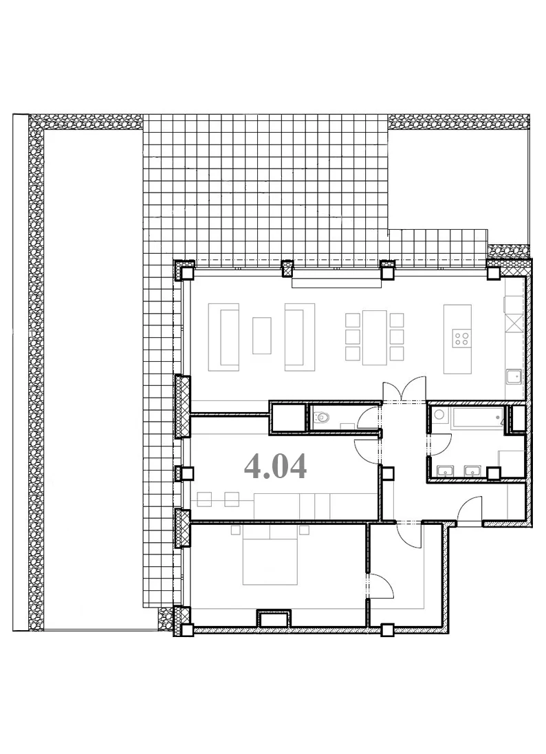
Jednotka 4.04
rezervováno
| Jednotka | 4.04 |
|---|---|
| Podlaží | 4.NP |
| Dispozice | 3+kk |
| Podlahová plocha | 116,9 m² |
| Balkón / terasa | 52,5 m² |
| Sklep | - |
| Cena | - |
| Status | rezervováno |
| Jednotka | 4.04 |
|---|---|
| Podlaží | 4.NP |
| Dispozice | 3+kk |
| Podlahová plocha | 116,9 m² |
| Balkón / terasa | 52,5 m² |
| Sklep | - |
| Cena | - |
| Status | rezervováno |